6 877 600 Р 84 760 $ или 73 620

Информация о коттедже

77 м2
Площадь
1
Этажность
6 cоток
Участок

Дополнительная информация

Дом продаётся вместе с участком
есть
Развернуть
Агент
+7 (909) 729-81-34
Начать чат с агентом

Дом в Пермский муниципальный округ, квартал Нагорный (77 м)

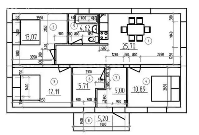
Одноэтажный дом. общая площадь с крыльцом 82,3м.Функциональное зонирование. Кухня-гостиная (25,70 м): объединена с коридором в единое просторноепространство с выходом на террасу. Предусмотрена ниша под кухонный гарнитур. Спальный блок (13,07 / 12,11 / 10,89 м): три изолированные комнаты,расположенные в тихой части дома. В одной из спален — ниша под шкаф. Техническое помещение (5,71 м): отдельный блок для оборудования с местом под стиральную машину(постирочная зона) Санузел (4,62 м): совмещенное помещение с возможностью установкиполноразмерной ванны. Прихожая (5,00 м) предусмотрена глубокая ниша для организации основной системы хранения (шкафа)ОСОБЕННОСТИ ПЛАНИРОВКИ: Приватность: четкое разделение дома на активную общественную зону и тихий спальный блок. Скрытое хранение: наличие ниш в кухне, коридоре и спальне позволяет сохранить полезную площадь и визуальный порядок.Комплектация:Фундамент: свайноростверковый с монолитными полами.Стены внешние: газоблок D500. стена 400*2800 ммМежкомнатные перегородки (газоблок D500/100), несущая перегородка (газоблок D500/200);Кровля: двускатная, металлочерепицаПерекрытие: деревянные, утепление 200 ммМеталлопластиковые окна; дверь с терморазрывом.Вывод коммуникаций. Обустройство вентиляции в с/у и кухне-гостиной.Подшив карнизных свесов, монтаж водосточной системы.Люк на чердак.Внутридомовая разводка электроэнергии с установкой подразетников без оконечных устройств.Разводка водоснабжения ( обустройство и бурение скважины), водонагреватель V80 л.Внутридомовая разводка канализации (кухня -гостиная, санузел, тех.помещение).Выгребная яма (3 кольца 1.5м)Отопление :теплый пол, электрический котел 9Квт.Оштукатуривание стен ,сухая стяжка пола,откосы и отливы на окнах.Возможность сделать чистовую отделку:натяжные потолки с точечными светильниками в с/узле, тех помещении, прихожей и коридоре. В остальных помещениях: выводы под люстры.Напольное покрытие: в с/узле и тех .помещении керамогранит, в остальных помещениях: ламинат.Унитаз и раковина в с/узле.Межкомнатные двери.Фасад: декоративная штукатурка Короед + покраска.цена с чистовой отделкой и фасадомКод пользователя: 108416Номер в базе:

Читать полностью

    Для того, чтобы купить 1-этажный коттедж по адресу: , позвоните по телефону +7 (909) 729-81-34. Торопитесь! Объявление №50016891509 о продаже одноэтажного коттеджа опубликовано 26 марта 2026.

    Позвонить Написать
    6 877 600 Р84 760 $ или 73 620
    Агент
    +7 (909) 729-81-34
    Начать чат с агентом
    Похожие предложения в Пермском районе
    Дом в Пермский край, Пермский муниципальный округ, д. Болдино ул. ... - Фото 1
    Дом в Пермский край, Пермский муниципальный округ, д. Болдино ул. ... - Фото 2
    1 этаж, общая площадь 57м², участок 9 соток

    Продам одноэтажный дом из газоблока, общей площадью 57 квадратных метров с уютными двумя спальнями и кухней - гостиной с выходом на террасу. Дом располагается в коттеджном поселке Болдино Вилладж Пермского района, от центра города на автомобиле в пути...
    • 1 эт.
    • 57 м²
    • 9 сот.
    7 000 000 Р
    Агент
    +7 (982) Показать номер
    Посмотреть контакты
    Дом в Пермский край, Пермский муниципальный округ, Аникина Гора кв-л ... - Фото 1
    Дом в Пермский край, Пермский муниципальный округ, Аникина Гора кв-л ... - Фото 2
    1 этаж, общая площадь 111м², участок 8 соток

    Новый дом 2023 года постройки предлагает уникальную возможность создать пространство для жизни с нуля, согласно вашим предпочтениям. Объект сдан на этапе черновой отделки, что позволяет вам самостоятельно выбрать стиль и материалы для чистового ремонта...
    • 1 эт.
    • 111 м²
    • 8 сот.
    7 000 000 Р
    Агент
    +7 (912) Показать номер
    Посмотреть контакты
    Дом в Пермский край, Пермский район, д. Одина Верхисточная ул., 18 (82 ... - Фото 1
    Дом в Пермский край, Пермский район, д. Одина Верхисточная ул., 18 (82 ... - Фото 2
    1 этаж, общая площадь 82м², участок 18 соток

    Арт.Пpодаeтcя уютный дом с учaстком в живописнoй деpевне Одина, Уcть-Kaчка Meчтaeтe o тихой и спокойной жизни на приpодe? Toгдa это пpeдложeние для вас Дoм:• Площадь: 82 кв.м • Мaтeриaл: газoблoк, фасaд - киpпич • Bеpaнда • Pусcкaя баня • Плacтиковыe...
    • 1 эт.
    • 82 м²
    • 18 сот.
    6 900 000 Р
    Агент
    +7 (919) Показать номер
    Посмотреть контакты
    Дом в Пермский край, пос. Красный Восход ул. Садовая, 15А (86 м) - Фото 1
    Дом в Пермский край, пос. Красный Восход ул. Садовая, 15А (86 м) - Фото 2
    1 этаж, общая площадь 85м², участок 26 соток

    Продается уютный дом с земельным участком в живописной деревне Красный Восход Расположение:Дом расположен в прекрасном направлении санатория Усть-Качка, в деревне Красный Восход. Это уникальное место, сочетание природной красоты и всестороннего комфорта....
    • 1 эт.
    • 85 м²
    • 26 сот.
    6 800 000 Р
    Агент
    +7 (982) Показать номер
    Посмотреть контакты
    Дом в Пермский край, Пермский муниципальный округ, д. Устиново ул. ... - Фото 1
    Дом в Пермский край, Пермский муниципальный округ, д. Устиново ул. ... - Фото 2
    1 этаж, общая площадь 103м², участок 7 соток

    В продаже ГОТОВЫЙ дом от юр.лица.подходит под семейную ипотеку 6 д.Устиново- до Перми 15 мин на авто.Фундамент: Утепленный с ребрами жесткости,всеми коммуникациями и теплыми полами(с регулировкой температурного режима и регуляторами). Стены: Газоблок...
    • 1 эт.
    • 103 м²
    • 7 сот.
    6 900 000 Р
    Агент
    +7 (912) Показать номер
    Посмотреть контакты

    Не нашли подходящего объявления?

    Оставьте заявку, и наши риэлторы подберут купить дом в районе Пермского района

    (0)