3 750 000 Р 47 960 $ или 41 300

Информация о квартире

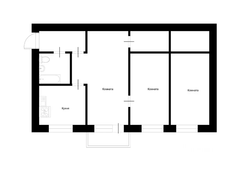
51 м2
Площадь
35 м2
Жилая
5 м2
Кухня
3
Комнаты
2
Этаж
5
Этажность

Дополнительная информация

Тип дома
кирпичный
Развернуть
Агент
+7 (982) 440-98-26
Начать чат с агентом

3-к кв. Пермский край, Добрянский городской округ, Полазна рп ул. 50 ...

Продам уютную и тёплую трёхкомнатную квартиру на 2 этаже. Окна пластиковые, балкон застеклен. Соседи хорошие, подъезд чистый. Хорошая инфраструктура, в шаговой доступности: больница, школа, детский сад, множество магазинов. Один взрослый собственник. Без долгов и обременений. Быстрый выход на сделку. Торг уместен. Показ по предварительной договорённости. Помогу с оформлением ипотеки, чистая и безопасная сделка.

Читать полностью

    Для того, чтобы купить трехкомнатную квартиру по адресу: Полазна, ул. 50 лет Октября, 15, позвоните по телефону +7 (982) 440-98-26. Торопитесь! Объявление №30081745705 о продаже трехкомнатной квартиры опубликовано 03 марта 2026.

    Позвонить Написать
    3 750 000 Р47 960 $ или 41 300
    Агент
    +7 (982) 440-98-26
    Начать чат с агентом
    Похожие предложения
    2-к кв. Пермский край, Добрянский муниципальный округ, Полазна рп ул. ... - Фото 1
    2-к кв. Пермский край, Добрянский муниципальный округ, Полазна рп ул. ... - Фото 2
    2-комнатная квартира, общая площадь 46м², жилая 29м², кухня 5м²

    Продается 2-комнатная квартира в центре поселка Эта квартира идеально подходит как для проживания, так и для сдачи в аренду Район: Пермский край, г. Добрянка, пгт. Полазна, ул. 50 лет Октября, д. 19.Инфраструктура: В шаговой доступности есть все необходимое...
    • 46 м²
    • 2-ком
    • 5/5 эт.
    • кирпичный
    3 800 000 Р
    Агент
    +7 (919) Показать номер
    Посмотреть контакты
    2-комнатная квартира: Пермский край, Добрянский муниципальный округ, ... - Фото 1
    2-комнатная квартира: Пермский край, Добрянский муниципальный округ, ... - Фото 2
    2-комнатная квартира, общая площадь 46м², жилая 29м², кухня 5м²

    Продается 2-комнатная квартира в центре поселка Эта квартира идеально подходит как для проживания, так и для сдачи в аренду Район: Пермский край, г. Добрянка, пгт. Полазна, ул. 50 лет Октября, д. 19. Инфраструктура: В шаговой доступности есть все...
    • 46 м²
    • 2-ком
    • 5/5 эт.
    3 800 000 Р
    Агент
    +7 (909) Показать номер
    Посмотреть контакты
    2-к кв. Пермский край, Добрянский муниципальный округ, Полазна рп ул. ... - Фото 1
    2-к кв. Пермский край, Добрянский муниципальный округ, Полазна рп ул. ... - Фото 2
    2-комнатная квартира, общая площадь 46м², жилая 29м², кухня 5м²

    Продам 2-комнатную квартиру Общая площадь 46.6 кв.м. Удобная и функциональная планировка:- балкон- потолки 2.8 м О доме:- панельный дом 1977 года постройки- 5 этажей- большая парковка, не проездной двор Инфраструктура и район:- остановки общественного...
    • 46 м²
    • 2-ком
    • 4/5 эт.
    • кирпичный
    3 800 000 Р
    Агент
    +7 (919) Показать номер
    Посмотреть контакты
    2-к кв. Пермский край, Чайковский ул. Гагарина, 32 (44.6 м) - Фото 1
    2-к кв. Пермский край, Чайковский ул. Гагарина, 32 (44.6 м) - Фото 2
    2-комнатная квартира, общая площадь 44м²

    Продам уютную двухкомнатную квартиру на Уральской. Тихий спокойный двор, большая парковка, чистый подъезд, любимый всеми третий этаж Комнаты изолированы, санузел совмещенный в кафеле. Сантехника вся в рабочем состоянии. Окна и балкон остеклены пластиковыми...
    • 44 м²
    • 2-ком
    • 3/5 эт.
    • блочный
    3 890 000 Р
    Агент
    +7 (982) Показать номер
    Посмотреть контакты
    3-к кв. Пермский край, Добрянка ул. Герцена, 36/1 (60.6 м) - Фото 1
    3-к кв. Пермский край, Добрянка ул. Герцена, 36/1 (60.6 м) - Фото 2
    3-комнатная квартира, общая площадь 60м², кухня 7м²

    Продаётся трёхкомнатная квартира старомосковского проекта в районе 5 школы. Квартира очень тёплая. Комнаты изолированные, санузел раздельный. Есть кладовка. Большая лоджия, застеклена. В шаговой доступности: школа, детский сад, больница, парк, аллея Доброты,...
    • 60 м²
    • 3-ком
    • 2/5 эт.
    • кирпичный
    3 800 000 Р
    Агент
    +7 (982) Показать номер
    Посмотреть контакты

    Не нашли подходящего объявления?

    Оставьте заявку, и наши риэлторы подберут квартиру в районе Полазны

    (0)