83 300 Р 1 090 $ или 923

Информация об помещении

1
Этаж

Состояние и оснащение

Количество этажей
2
Развернуть
Агент
+7 (919) 440-38-02
Начать чат с агентом

Помещение свободного назначения в Пермский край, Добрянский ...

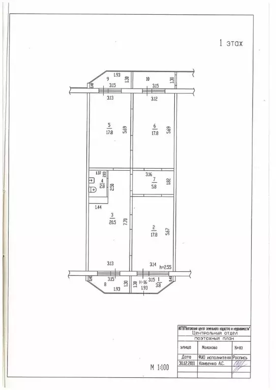
Сдается готовое место для бизнеса Предлагаем в аренду торговые и офисные помещения в здании с высоким потоком клиентов — идеальное решение для ведения бизнеса в Полазне Расположение: Пермский край, г. Добрянка, пгт. Полазна. здание находится в самом центре поселка, что обеспечивает максимальную видимость и доступность для ваших клиентов. Удобства: • Рядом расположена остановка общественного транспорта, что делает здание легко доступным для посетителей. Кроме того, оно обладает высокой проходимостью, что способствует привлечению большего числа клиентов.• Удобная парковка для автомобилистов гарантирует комфортное посещение вашего бизнеса. • Места для вывесок и наружной рекламы.Площадь: 83,3 кв.м, что позволяет организовать различные виды деятельности и адаптировать пространство под ваши нужды. Коммуникации: Установлены все необходимые коммуникации: электричество и сигнализация, что обеспечит надежную работу вашего бизнеса. Гибкость использования: Здание отлично подходит для торговли различными товарами, предоставления услуг или организации офиса. Вы можете реализовать свои идеи и адаптировать пространство под любые потребности. Не упустите возможность начать свой бизнес в выгодном месте Это шанс, который стоит рассмотреть Звоните для получения дополнительной информации и организации просмотра. Арт.

Читать полностью
    Позвонить Написать
    83 300 Р1 090 $ или 923
    Агент
    +7 (919) 440-38-02
    Начать чат с агентом
    Похожие предложения
    Помещение свободного назначения в Пермский край, Пермь ул. Николая ... - Фото 1
    Помещение свободного назначения в Пермский край, Пермь ул. Николая ... - Фото 2
    Сдается в аренду помещение свободного назначения в цокольном этаже нового БЦ Тимирязев по адресу Островского, 65.Преимущества помещения:Цокольный этаж, отдельный вход со двора.Свежий ремонт, высокие потолки.Возможность обустройства мокрой точки.Подойдет...
    • -1/4 эт.
    83 360 Р
    Агент
    +7 (919) Показать номер
    Посмотреть контакты
    Помещение свободного назначения в Московская область, Люберцы ... - Фото 1
    Помещение свободного назначения в Московская область, Люберцы ... - Фото 2
    Номер лота: 12395 ЖК СОЛНЕЧНАЯ ПОЛЯНА Россия, Московская область, городской округ Люберцы, рабочий посёлок Октябрьский, улица 60 лет Победы, Шоссе: Новорязанское Общая площадь: 92.60 м.кв., Жилая площадь: 0.00 м.кв., Площадь кухни: 0.00...
    • 1/16 эт.
    83 340 Р
    Агент
    +7 (985) Показать номер
    Посмотреть контакты
    Аренда ПСН, м. Чеховская, ул. Петровка - Фото 1
    Аренда ПСН, м. Чеховская, ул. Петровка - Фото 2
    Аренда ПСН, м. Чеховская, ул. Петровка - Фото 3
    Аренда ПСН, м. Чеховская, ул. Петровка - Фото 4
    Аренда ПСН, м. Чеховская, ул. Петровка - Фото 5
    Аренда ПСН, м. Чеховская, ул. Петровка - Фото 6
    Аренда ПСН, м. Чеховская, ул. Петровка - Фото 7
    общая площадь 79.9м², полезная площадь 79.9м²

    Аренда помещения свободного назначения. 500 метров от станции метро Чеховская! Площадь 79,9м2, 1-й этаж, свободная планировка, 10 окон, два входа, 2 мокрых точки, с ремонтом. Вторая линия, вход со двора. Соседние арендаторы - бары Вода и Плохой Сэм....
    • 79.9 м²
    • 1-й эт.
    550 000 Р /в месяц
    Агент
    +7 (903) Показать номер
    Посмотреть контакты
    Аренда ПСН, м. Алексеевская, ул. Бочкова - Фото 1
    Аренда ПСН, м. Алексеевская, ул. Бочкова - Фото 2
    Аренда ПСН, м. Алексеевская, ул. Бочкова - Фото 3
    Аренда ПСН, м. Алексеевская, ул. Бочкова - Фото 4
    Аренда ПСН, м. Алексеевская, ул. Бочкова - Фото 5
    Аренда ПСН, м. Алексеевская, ул. Бочкова - Фото 6
    Аренда ПСН, м. Алексеевская, ул. Бочкова - Фото 7
    Аренда ПСН, м. Алексеевская, ул. Бочкова - Фото 8
    Аренда ПСН, м. Алексеевская, ул. Бочкова - Фото 9
    Аренда ПСН, м. Алексеевская, ул. Бочкова - Фото 10
    Аренда ПСН, м. Алексеевская, ул. Бочкова - Фото 11
    Аренда ПСН, м. Алексеевская, ул. Бочкова - Фото 12
    общая площадь 388м², полезная площадь 388м²

    ПСН общей площадью 388 м2, находится в 2–х минутах пешком от станции метро Алексеевская, СВАО, район Останкинский. Помещение расположено на 1 этаже 2-х этажной пристройки к жилому дому. 1-я линия домов. Высота потолков 3,5 метров, есть 2 отдельных входа...
    • 388 м²
    • 1-й эт.
    2 700 000 Р /в месяц
    Агент
    +7 (903) Показать номер
    Посмотреть контакты
    Аренда ПСН, м. Академическая, ул. Дмитрия Ульянова - Фото 1
    Аренда ПСН, м. Академическая, ул. Дмитрия Ульянова - Фото 2
    Аренда ПСН, м. Академическая, ул. Дмитрия Ульянова - Фото 3
    Аренда ПСН, м. Академическая, ул. Дмитрия Ульянова - Фото 4
    Аренда ПСН, м. Академическая, ул. Дмитрия Ульянова - Фото 5
    Аренда ПСН, м. Академическая, ул. Дмитрия Ульянова - Фото 6
    общая площадь 35.9м², полезная площадь 35.9м²

    Помещение расположено у входа/выхода из метро Академическая. ЮЗАО. Первая линия, отличная видимость, интенсивный пешеходный трафик от 1500 чел/час. Густонаселенный район с развитой инфраструктурой и сложившимся торговым окружением. Помещение общей площадью...
    • 35.9 м²
    • 1-й эт.
    250 000 Р /в месяц
    Агент
    +7 (903) Показать номер
    Посмотреть контакты

    Не нашли подходящего объявления?

    Оставьте заявку, и наши риэлторы подберут псн в районе Полазны

    (0)