2 150 000 Р 26 410 $ или 22 700

Информация о квартире

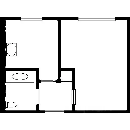
30 м2
Площадь
16 м2
Жилая
6 м2
Кухня
1
Комната
5
Этаж
5
Этажность

Дополнительная информация

Тип дома
панельный
Развернуть
Агент
Евгений Рудер (СТИМУЛ)
+7 (982) 480-88-35
Начать чат с агентом

1-к кв. Пермский край, Соликамск ул. Матросова, 59а (30.0 м)

Продается однокомнатная квартира по улице Матросова 59аО КВАРТИРЕ:- Этаж 5/5- Общая площадь 30кв.м- Жилая площадь 16 кв.м- Кухня 6 кв.м- Соседи отличные- Подъезд чистыйОПИСАНИЕ:- Квартира светлая и тёплая- Окна ПВХ- На полу ламинат- Счётчики на воду - Трубы поменяны- Ванная в кафеле- Долгов нетРЯДОМ С ДОМОМ НАХОДИТСЯ:- Школа 14- Детские сада 25, 45- Магазины- ТЦ Европа- Остановки общественного транспорта в шаговой доступностиО СДЕЛКЕ:- Без обременения- Прямая продажа- Полное юридическое сопровождение- Любая форма оплатыПОЧЕМУ МЫ:- Федеральная компания- Работаем по стандартам качества- Юридическое сопровождение сделки на всех этапах- Помощь в оформлении ипотеки- Наша деятельность застрахована в компании ВСК ЗВОНИТЕ ПРЯМО СЕЙЧАС И ЗАПИСЫВАЙТЕСЬ НА ПРОСМОТРПонравился наш вариант, а на покупку не хватает средств? Мы согласуем ипотеку. У Вас обмен и своя недвижимость еще не продана? Предложите её, у нас более 30 агентов и чаще всего, покупатель уже есть. Звоните и приходите на просмотр

Читать полностью

    Для того, чтобы купить однокомнатную квартиру по адресу: Соликамск, ул. Матросова, 59а, позвоните по телефону +7 (982) 480-88-35. Торопитесь! Объявление №30090888653 о продаже однокомнатной квартиры опубликовано 2 дня назад.

    Позвонить Написать
    2 150 000 Р26 410 $ или 22 700
    Агент
    Евгений Рудер (СТИМУЛ)
    +7 (982) 480-88-35
    Начать чат с агентом
    Похожие предложения
    2-к кв. Пермский край, Соликамск ул. Металлургов, 55 (43.5 м) - Фото 1
    2-к кв. Пермский край, Соликамск ул. Металлургов, 55 (43.5 м) - Фото 2
    2-комнатная квартира, общая площадь 43м², жилая 27м², кухня 5м²

    На продаже теплая, уютная квартира в южной части города.Имеется вместительный балкон, большая кладовка( можно сделать гардеробную).После продажи остается встроенный кухонный гарнитур, газовая плита.Рассмотрим любые способы оплаты, в том числе обмен.Помогу...
    • 43 м²
    • 2-ком
    • 3/5 эт.
    • панельный
    2 100 000 Р
    Агент
    +7 (912) Показать номер
    Посмотреть контакты
    2-к кв. Пермский край, Соликамск ул. 20-летия Победы, 150 (42.0 м) - Фото 1
    2-к кв. Пермский край, Соликамск ул. 20-летия Победы, 150 (42.0 м) - Фото 2
    2-комнатная квартира, общая площадь 42м², кухня 6м²

    Продается теплая, уютная квартира на Нижнем Больничном, первая линия, через дорогу - БЦ Пять звезд .Комфортный для проживания 3-й этаж.Квартира в простом состоянии, выполнен косметический ремонт.Мебель после продажи остается по договоренности с собственником.Рассмотрим...
    • 42 м²
    • 2-ком
    • 3/4 эт.
    • кирпичный
    2 200 000 Р
    Агент
    +7 (912) Показать номер
    Посмотреть контакты
    1-к кв. Пермский край, Соликамск ул. 20-летия Победы, 67 (35.7 м) - Фото 1
    1-к кв. Пермский край, Соликамск ул. 20-летия Победы, 67 (35.7 м) - Фото 2
    1-комнатная квартира, общая площадь 35м², жилая 22м², кухня 7м²

    Продается ОТЛИЧНАЯ однокомнатная квартира С ИДЕАЛЬНОЙ ЛОКАЦИЕЙ по адресу 20-ЛЕТИЯ ПОБЕДЫ 67О КВАРТИРЕ:- Этаж 5/5- Общая площадь 35.7 кв.м- Жилая площадь 22.1 кв.м- Кухня 7 кв.м- Соседи отличные- Подъезд чистый- Хорошая управляющая компанияОПИСАНИЕ:- Квартира...
    • 35 м²
    • 1-ком
    • 5/5 эт.
    • панельный
    2 200 000 Р
    Агент
    +7 (982) Показать номер
    Посмотреть контакты
    1-к кв. Пермский край, Чайковский ул. Декабристов, 13 (29.0 м) - Фото 1
    1-к кв. Пермский край, Чайковский ул. Декабристов, 13 (29.0 м) - Фото 2
    1-комнатная квартира, общая площадь 29м²

    Продам теплую светлую просторную квартиру на Заре В шаговой доступности вся инфраструктура города: автобусные остановки, колледж, магазины, аптеки, школа, садик, поликлиника, МФЦ. Чистый подъезд, хорошие соседи. В квартире все окна пластиковые, металлическая...
    • 29 м²
    • 1-ком
    • 2/5 эт.
    • блочный
    2 300 000 Р
    Агент
    +7 (982) Показать номер
    Посмотреть контакты
    2-к кв. Пермский край, Березники ул. Мира, 41 (46.0 м) - Фото 1
    2-к кв. Пермский край, Березники ул. Мира, 41 (46.0 м) - Фото 2
    2-комнатная квартира, общая площадь 46м², жилая 32м², кухня 6м²

    ПРОДАЕТСЯ ДВУХКОМНАТНАЯ КВАРТИРА г.Березники, ул.Мира, д.41 Этаж 2/5 Дом панельный, с ж/б перекрытиями, УК Семино Общая площадь квартиры - 46,4 кв.м. Комнаты - 16,2 / 16,2 кв.м. Кухня - 6 кв.м. Санузел раздельный - 0,9 /2,1 кв.м. Балкон - 2,43 кв.м,...
    • 46 м²
    • 2-ком
    • 2/5 эт.
    • панельный
    2 300 000 Р
    Агент
    +7 (912) Показать номер
    Посмотреть контакты

    Не нашли подходящего объявления?

    Оставьте заявку, и наши риэлторы подберут квартиру в районе Соликамска

    (0)